카르나크 신전

고대 이집트 최대 규모의 신전.

[responsive]

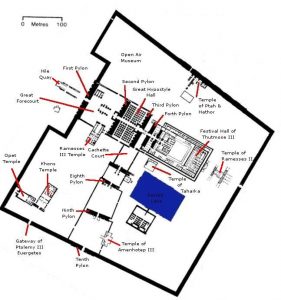
카르나크 신전 배치도. Public Domain.

[/responsive]

룩소르 북쪽 약 2.5 킬로미터 떨어진 카르나크라는 마을에 위치하며 강에 직접 면하고 있다. 고왕국 제 12 대 왕조 세누스트레스 왕이 건조하기 시작하여 로마 황제 대까지 지속적으로 증축되거나 개축되어 신전 복합체로 성장했다. 아문-라의 신부 무트 여신과 아들 콘수 신을 위해 각각 별도의 구역이 마련되었다. 위의 삼신 외에도 11왕조대까지 테베의 수호신 역할을 했던 모수 신을 위해 별도의 신전을 지었다.

1979년 룩소르 신전, 및 테베의 네크로폴리스와 함께 유네스크 세계문화유산으로 등록되었다.  신전 전체는 크게 세 개의 영역으로 나뉘며 각각 담으로 둘러쳐져 있다.

  • 몬수 (Monthu, Montu, Monto 등으로 다양하게 표기됨.) 성역: 150m x 156m, 2.34 헥타르
  • 아문-라 (아문, 아문-레)  성역: 마름모 꼴로 각 변의 길이 530m, 515m, 530m,  610 m, 면적 약 30 헥타르
  • 무트 성역: 마름모 꼴로 각 변의 길이 405m, 275m, 295m, 250m이며 면적은 약 9.2 헥타르

[gap height=”5″]

목차

신전의 용도


이집트의 신앙은 마트[1]마트 Ma’at, Maat, Mayet는 동시에 법, 정의, 조화, 진리, 지혜의 … Continue reading라고 불렀던 우주의 질서에 근간을 두고 있으며 영원불변의 상태를 나타내기도 한다. 인간에 의해 마트의 완벽한 균형이 깨지면 세상에 혼돈이 올 수 있으므로 이 상태를 유지하는 것이 중요했다.  신전에서 이런 평형 상태가 유지된다고 믿었으므로 왕과 제사장이 매일 제를 올렸다.

아문-라 성역


세 구역 중 가장 크다. 아문-라 신전 외에 콘수 (달의 신) 신전, 이페트 신당, 프타 신당  및 아멘호테프 2세의 사당이 있으며 그외에도 백색 신당 (카르나크에서 가장 오래 된 건물, 초기 왕조 대에 세트 축제와 관련 있다. ), 적색 신당 (람세스 3세의 신성한 배를 모셔 놓은 곳) 등의 소건축물들이 있다.

아문-라 신전

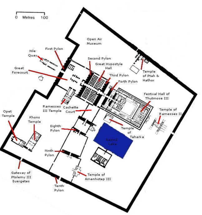
아문-라 구역의 배치도. 중앙에 아문라 신전이 있고 주변에 크고 작은 신전들이 다수 배치되어 있다. 북서쪽에 움푹 들어간 곳이 선착장이며 여기서 직선으로 축을 따라 성역으로 들어간다. Graphic: Markh, Wikimedia Commons, License: Public Domain.

[responsive]

[/responsive]

아문-라 신전은 제국의 신전이라고도 일컬어 지며 이집트에서 가장 큰 규모로 모두 10개의 탑문 (필론)이 있다. 제 18 왕조대부터 계속 증축되었다.  탑문 중에 큰 것은 폭 약 113 미터, 높이 45미터에 두께 약 15미터에 달한다. 고대에는 아문-라 신전과 약 2.5 킬로미터 떨어진 룩소르 신전이 대로로 연결되어 있었으며 길 좌우에 350기의 스핑크스가 정렬되어 있었다. 이 길이 끝나는 곳에 열번 째 탑문이 있었다.

무트 구역과 아문-라 구역 사이에도 스핑크스 66기가 배열된 연결로가 있다. 북서쪽에 나일강변에 선착장이 있으며 여기서 축제 때 신의 상을 신성한 배에 모시고 좌안, 즉 서쪽으로 건너갔다. 선착장을 면하는 곳에 첫번 째 탑문이 있으며 이를 통과하면 대형 광장이 나타난다. 광장을 지나면 다주실이 있고 여기서 축을 따라가면 내부 깊숙이 성역에 도달한다. 성역 가장 후방에 투트모세스 3세가 지은 연회장(Festival Hall of Thutmose III)이 있고 연회장 뒤쪽에 별도의 좁은 회랑이 마련되어 있는 데 바로 이 회랑이 소위 투트모세의 식물원이라 불리는 것으로서 벽에 동식물 그림이 부조로 새겨져 있다.

 

몬수 성역


몬수 신전은 아메노피스 3세가 건설. 본래는 사방이 담으로 둘러싸여 있었으며 마트 여신의 신전, 투트모세 1세의 보고 등이 위치하고 있다. 여기서 다른 신전과 좌우로 스핑크스가 배치되어 있는 길을 따라 선착장까지 연결되어 있다.

무트 성역


아문-라 성역으로부터 약 350미터 남서쪽으로 떨어진 곳에 건설되었다. 66개의 스핑크스가 좌우에 배치되어 있는 길로 서로 연결되어 있었다. 성역 중심에 세 방향에서 신성한 호수로 둘러싸인 무트 여신의 신전이 있다. 주변에 람세스 2세가 태어났던 집이 있으며 람세스 3세의 신전이 여기도 있다. 그 외에 정확히 정의되지 않은 작은 신전들이 여러 개 위치한다.

사진 및 그림


[gap height=”5″]

https://commons.wikimedia.org/wiki/File:NIEdot361.jpg

카르나크 신전 다주실을 재현한 그래픽. 출처: Dodd, Mead and Company – New International Encyclopedia. Public Domain.

[responsive][/responsive]

[gap height=”10″]

[gap height=”30″]

[hr style=”1″ margin=”40px 0px 40px 0px”]

[separator headline=”h4″ title=”참고 문헌”]

  • Dieter Arnold: Die Tempel Ägyptens, Bechtermünz Verlag 1992
  • Dieter Arnold: “Kom Ombo”. In: Lexikon der ägyptischen Baukunst. Artemis & Winkler, Zürich 1997, S. 126 f.
  • Karl Richard Lepsius, Denkmaeler aus Aegypten und Aethiopien nach den Zeichnungen der von Seiner Majestät dem Koenige von Preussen, Friedrich Wilhelm IV., nach diesen Ländern gesendeten, und in den Jahren 1842–1845 ausgeführten wissenschaftlichen Expedition Abth. 1–6 in 12 Bd. Nicolaische Buchhandlung, Berlin, 1849–1859. Edition des Belles Lettres, Geneve 1972–1973 (할레 대학교 디지털 도서관  )

[gap height=”50″][separator headline=”h3″ title=”서양정원사 백과”]

[gap height=”30″][clear]

Related entries

각주

각주
1 마트 Ma’at, Maat, Mayet는 동시에 법, 정의, 조화, 진리, 지혜의 여신이기도 함.
I